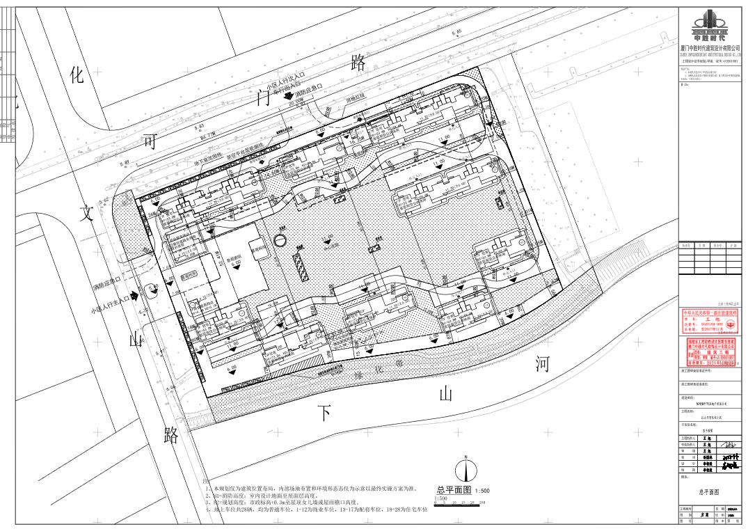
2026年4月23日,连江县自然资源和规划局发布“关于江山万里住宅小区项目的公示”。

江山万里住宅小区项目位于连江县人民会堂西侧、文山北路东侧,建设单位为福建融旷明亚地产有限公司。现建设单位向我局申请《建设工程规划许可证》。
根据《自然资源部关于加强和规范规划实施监督管理工作的通知》(自然资发〔2023〕237号)规定,现进行批前公示,征求利害关系人意见,公示时间为2026年4月23日至2026年5月6日。

公示图可以看到,项目规划9栋高层住宅,层高从17层至23层。其中,6栋楼规划17层,3栋规划为23层。
溢价约31.4%!福建融旷明亚置业2.135亿摘得连江优质地块

2025年10月15日,连江县举行2025年第八次土拍,其中,连地拍卖[2025]11号地块,起拍价为1.625亿,共8家房企参与竞拍,最终,历经52轮竞拍,由被福建融旷明亚置业有限公司以2.135亿竞得,溢价率31.4%,楼面价约4017.4元/㎡。

连地拍卖[2025]11号占地面积26572㎡(合39.86亩),规划用途:住宅用地、商服用地。容积率:>1.0且≤2.0;建筑限高80米(住宅平均层数不超过18层)。
地块位于连江县城中心板块,南侧俯瞰连江人民广场,,周边有县人民会堂、县五大中心等公建配套,紧邻文山路、敖江路等城市主干道,地块紧邻连江文笔小学,中学划片至连江一中鲤鱼山校区。龙芝商业广场、万星广场、万家广场等商业综合体也相距不远。在交通、教育和商业等配套方面都较为成熟。
融旷明亚江山万里,打造连江第五代全能抬板住宅

根据官方发布的信息显示,融旷明亚江山万里将打造建面约106-149平米全能第五代住宅,或成为连江首个真正意义上的抬板住宅。

2026年,福建融旷明亚地产于携 “江山万里” 磅礴而来。作为连江首个真正意义上的抬板住宅(第五代住宅),对传统社区底盘的系统性重构。

随着多地密集出台新规,架空平台下的停车空间不计入容积率,直接释放了巨大的成本与面积红利——这正是第五代住宅得以快速落地的政策底气。江山万里率先响应这一趋势,将抬板结构从“概念”推向“实景”。

江山万里以全域抬升约10米的创新设计,解决四代宅的采光、私密与潮湿的痛点。利用抬板设计形成的高差,构建立体园林+复合社交空间,打造约950㎡立体庭院。
返回海西房产网首页>>