海西房产网(微信公众号:fjhxfcw)消息:2026年4月17日,福清市自然资源和规划局发布“关于福建兴恒晟房地产开发有限公司雍璟湾郡项目的批前公示”。

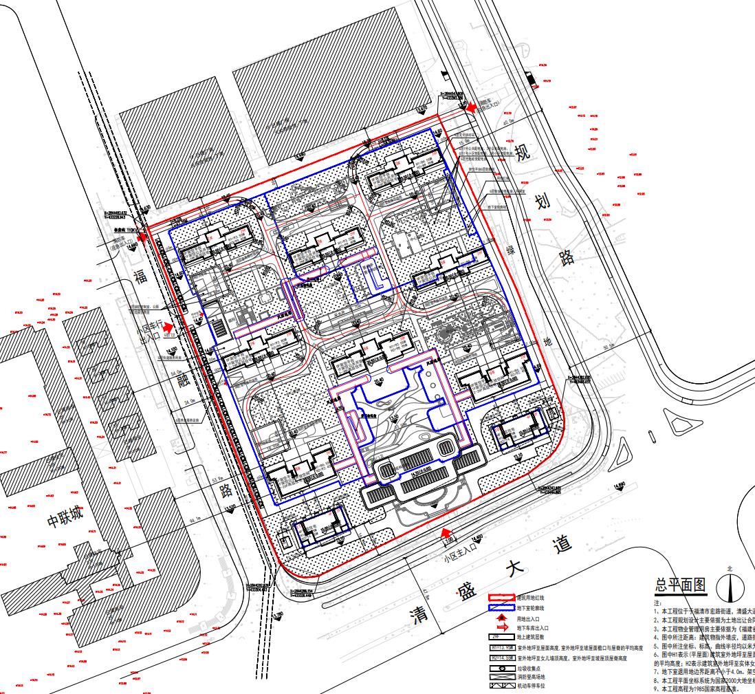
福建兴恒晟房地产开发有限公司雍璟湾郡项目位于福清市宏路街道,该项目总平面规划及建筑设计方案由福建广宇建筑设计院有限公司设计。现建设单位向我局申请审批项目建筑设计方案(含总平面图、管综图)。
依据《自然资源部关于加强和规范规划实施监督管理工作的通知》(自然资发〔2023〕237号)等规定,现将该项目的总平面图规划方案进行批前公示,以征求相关利害关系人的意见,公示地点:福清市政务服务中心公告宣传栏、项目现场、福清市自然资源和规划局网站(福清智慧城市规划网)。

项目总占地38313平米,折合57.47亩。总建筑面积124585.46平米。其中,计容住宅面积86167.46平米,商业建筑面积205.26平米。
项目容积率2.3,建筑密度30%,绿地率30%,规划居住总户数426户,居住人口中1363人。机动车车位648个,非机动车车位474个。

其中,多层住宅规划户型面积段从162平米至265平米.多层住宅户型面积有667平米、353平米两种。

2024年12月25日,2024年度第12次国有建设用地使用权公开拍卖大会上,个人竞买人陈先生(陈琛)以5.18亿元竞得福清宗地2024拍-41号地块,成交楼面价5878元/㎡。该地块备案名为“雍璟湾郡”。
地块位于宏路街道,清盛大道北侧,福通大道西侧,即原“益丰鳗业食品地块”,土地面积:38313㎡(约57.47亩),土地用途:居住用地-城镇住宅用地、商业服务业用地-商业用地;土地使用年限:住宅用地70年,商服用地40年。容积率:1.5-2.3,建筑密度:23%-30%,绿地率:30%-35%,住宅建筑限高:100米。
该项目成后的楼盘初中划片于福清一中观溪校区,待周边有新建的市属中学投入使用后再做划片调整。
返回海西房产网首页>>