海西房产网(微信公众号:fjhxfcw)消息:2026年3月30日,福清市自然资源和规划局发布“关于福清市实验小学清盛校区的批前公示”。

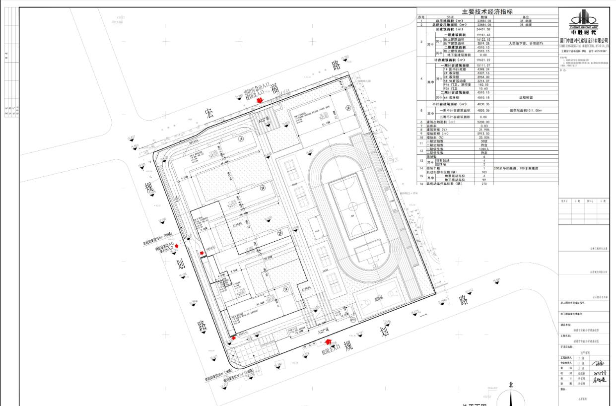
福清市实验小学清盛校区位于福清市宏路街道。该项目总平面规划及建筑设计方案由厦门中胜时代建筑设计有限公司设计。现建设单位向我局申请审核项目建筑设计方案(含总平面图、管综图)。
依据《自然资源部关于加强和规范规划实施监督管理工作的通知》(自然资发〔2023〕237号)等规定,现将该项目的总平面图规划方案进行批前公示,以征求相关利害关系人的意见。公示时间为2026年3月30日至2026年4月9日。

根据公布主要技术经济指标显示,福清市实验小学清盛校区总用地面积23654平米(折合35.48亩),总建筑面积24451.58平米。其中一期建筑面积19941.43平米,二期4510.15平米。建筑占地面积5200平米,容积率0.83,绿地面积5913.5平米,绿地率25%。
一期将建图书行政楼、教学楼、体育活动室、门卫、消控室等。二期拟建6#教学楼。球场数6个(羽毛球场4个,篮球场2个),1个操场。
根据规划,一期班级数30班,学生位1350人,二期班级数待定。

据悉,福清市实验小学清盛校区为市直属公办小学,全额拨款事业单位,隶属福清市教育局管理。项目位于宏路街道宏路村,具体位于宏福路南侧、御江公馆北侧、汤呈公馆东侧,紧邻清盛大道。
根据福清融媒体中心的报道,今年2月10日,由福建港融集团携手宏禧地产、宏臻地产实物捐赠6000万元的福清市实验小学清盛校区建设项目举行开工仪式,预计2027年9月首次招生并投入使用。

项目建成后,将新增1620个优质学位,有效优化宏路片区的教育结构,有力满足周边群众的教育需求,进一步夯实福清教育高质量发展的基础。
返回海西房产网首页>>