海西房产网(微信公众号:fjhxfcw)消息:2026年3月17日,福清市自然资源和规划局发布关于福建启利投资有限公司荣科大楼项目的批前公示。

福建启利投资有限公司开发建设的荣科大楼项目位于福清市音西街道。
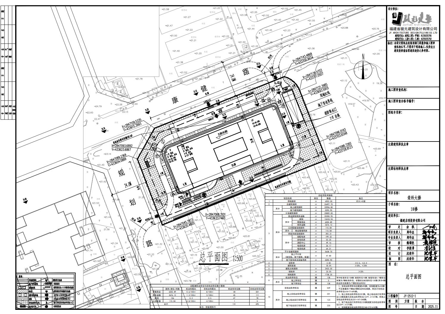
该项目总平面规划及建筑设计方案由福建省骏元建筑设计有限公司设计。现建设单位向我局申请变更该项目的《建设工程规划许可证》。
依据《自然资源部关于加强和规范规划实施监督管理工作的通知》(自然资发〔2023〕237号)等规定,现将该项目的总平面规划方案进行批前公示,以征求相关利害关系人的意见。公示时间为2026年3月16日至2026年3月26日。公示地点:福清市行政服务中心公告宣传栏、项目现场、福清市自然资源和规划局网站。

总平图显示,项目用地面积约10.43亩,总建筑面积26497平方米。1#楼,1-2F为商业、3F为商业、办公,4-5F为办公、6-11F为旅馆。总高度约59.6M。
业态规划有零售商业、商务金融和旗馆。其中旅馆建筑面积约10418.94平米,规划156间。零售商业建筑面积约6255.89平米;商务金融建筑面积约3676.12平米。另外配备138个机动车停车位。非机动车停车位549辆。
福建启利投资3050万竞得2025挂-04号

海西房产网(微信公众号:fjhxfcw)通过查询福清土地拍卖记录获悉,2025年4月18日,福建启利投资有限公司通过挂牌方式,以3050万元竞得福清2025挂-04号(政府储备地2025-020号),平均地价292.44万元/亩,楼面地价1462.19元/㎡。
福清2025挂-04号即为本次报建的“荣科大楼”。

出让公告显示,宗地编号2025挂-04号,土地位置音西街道,土地面积6953㎡(折合10.42亩),土地用途为商业服务业用地—商业用地(旅馆用地、零售商业用地)、商务金融用地。
规划设计主要指标:容积率:2.5-3.0;建筑密度:20%-35%;绿地率:≥30%。
土地使用年限为商业用地40年;开竣工时间土地交付之日起6个月内动工、自开工之日起36个月内竣工。
返回海西房产网首页>>