海西房产网(微信公众号:fjhxfcw)消息:2026年2月25日,闽侯县自然资源和规划局发布“关于福州地区大学新校区教师生活区B区一期总平面规划及B区-商业楼项目建筑设计方案的公示”。

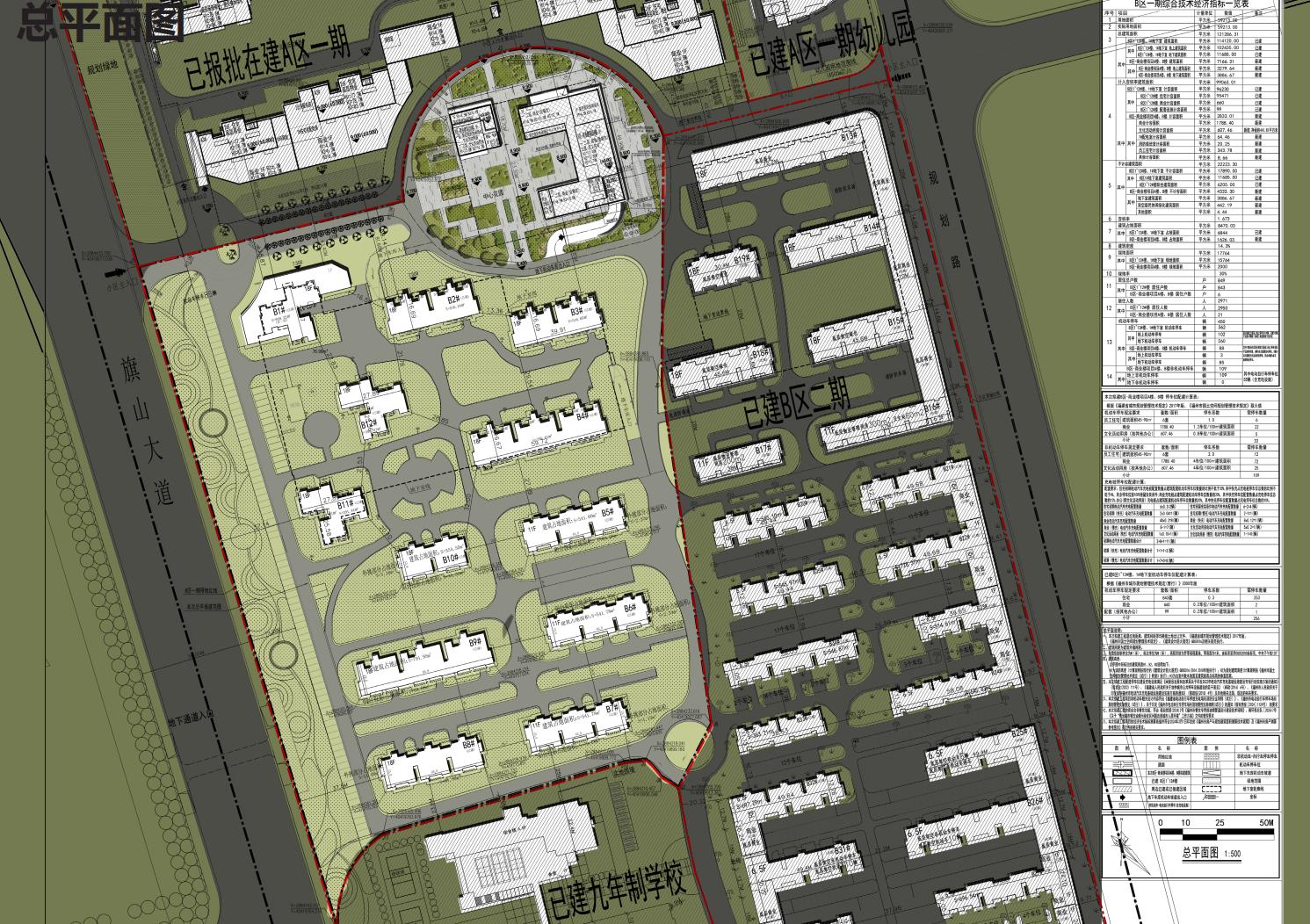
福建省直房地产开发有限公司建设的福州地区大学新校区教师生活区项目位于闽侯县上街镇。该项目原总平面规划方案于2012年11月30日经闽侯县住房和城乡建设局审批通过,主要经济技术指标为:总用地面积331760平方米(折合497.64亩),总建筑面积650717平方米,容积率1.673,建筑密度18.9%,绿地率30%。

为了优化项目规划设计,建设单位向我局申请对该项目B区一期总平面规划进行调整,并规划建设B区-商业楼。该项目总平面规划及建筑设计方案由福建众合开发建筑设计院有限公司设计,主要经济技术指标为:总用地面积59213平方米,实用地面积59213平方米(折合88.81亩),容积率1.673,建筑密度14.3%,绿地率30%;总建筑面积121286.31平方米,计容建筑面积99063.01平方米,不计容建筑面积22223.3平方米,建筑占地面积8470.03平方米,机动车停车位450辆,非机动车停车位109辆。
以上调整内容符合地块规划条件及有关规划管理技术规定的要求。
依据《福建省实施<中华人民共和国城乡规划法>办法》第五十三条,现将调整前后的图纸进行公示,以征求相关利害关系人的意见。公示时间为2026年2月25日至2026年3月9日。

B区-商业楼项目工程建设地点位于福州市闽侯县,福州大学东北侧,西临旗山大道,东侧为农民拆迁安置用地,南面为福州地区大学新校区教师生活区项目B区,北面为博仕后家园B区。
基地西邻旗山大道,北邻国宾大道,南邻橘园洲大桥,邻近地铁2号线金屿站和福州大学站,距离客运西站只有2公里路程,交通非常便利基地周边服务设施相对完善,涵盖教育、通讯、生活各方面。

项目南面为福州地区大学新校区教师生活区项目B区(已建),北面为福州地区大学新校区教师生活区项目A区一期。
B区-商业楼项目共分2栋多层公共建筑,其中A楼为3层建筑,B楼为3层建筑。共设1层地下室,作为机动车停车库及设备用房。

本次方案调整变更区域为:福州地区大学新校区教师生活区中的B区-商业楼项目区域。该区域内变更内容为:
1、原方案面积变更为现有方案。其余指标不变。
2、新建商业楼设计机动车位88个,除满足本次新建建筑配建需求外,还补充了该变更区域内原有31个地面机动车停车位。

本项目按照以人为本、方便生活的原则,设置住宅、配套及商业。2栋建筑成U形布置,与沿街底商形成良好商业氛围,同时腾出西南南侧空地作为绿化及市民活动广场。采用不对称的总平布局弱化轴线感,引导人流从西、南、北三个方向进入地块中心广场进行聚集互动。
建筑体块在地块中散落、堆叠,形成大量灰空间及露台空间,共同塑造错落有致、轻松灵动的建筑形象及商业氛围。
现代风格的立面设计采用白色为主,搭配暖色调作为点缀,与南北侧周边建筑的色彩元素相协调。

1、B区-商业楼项目A楼:地上3层,建筑高度14.2m,1层主要功能为架空、设备用房、商业,2层主要功能为商业,3层主要功能为住宅。
2、B区-商业楼项目B楼:地上3层,建筑高度14.2m,1层主要功能为架空、文化活动用房,2~3层主要功能均为文化活动用房两栋楼底部设置单层地下室,功能为机动车停车库、设备用房。

B区商业楼项目工程为2栋多层结构,功能为住宅、配套、商业。本工程设1层地下室,作为停车库。本工程建筑结构安全等级为二级,设计使用年限为50年。建筑抗震设防类别为标准设防类(丙类)。所在地区的抗震设防烈度为7度,设计基本地震加速度为0.10g,设计地震分组为第三组。采用框架结构,框架抗震等级三级。

本工程机动车停车数量88辆,电动汽车充电配置数量占建筑配建机动车停车位数量的不低于20%,快充占充电桩停车位总数的不低于12%,其中快充3辆,慢充8辆。
返回海西房产网首页>>