海西房产网(微信公众号:fjhxfcw)消息:2026年2月9日,连江县自然资源和规划局发布“关于凤鸣公馆商住小区项目调整公示 ”。

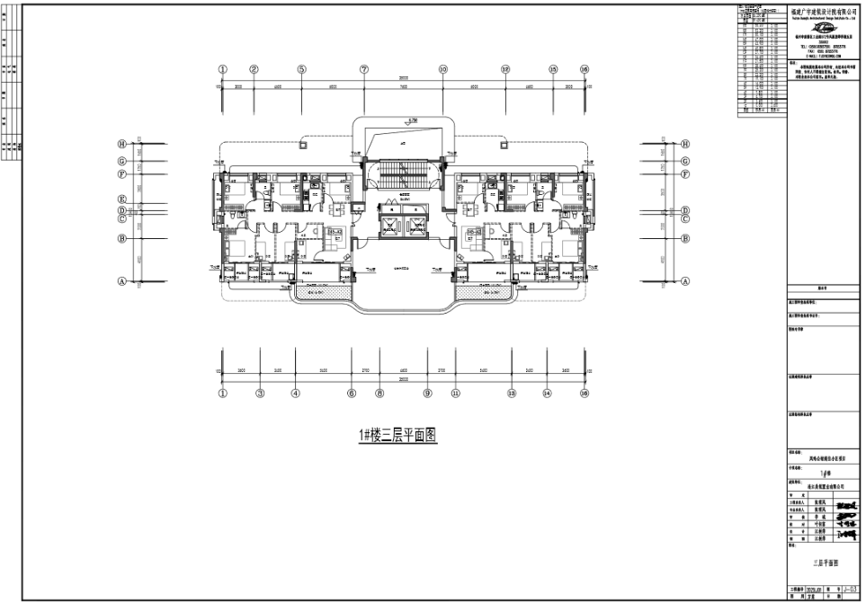
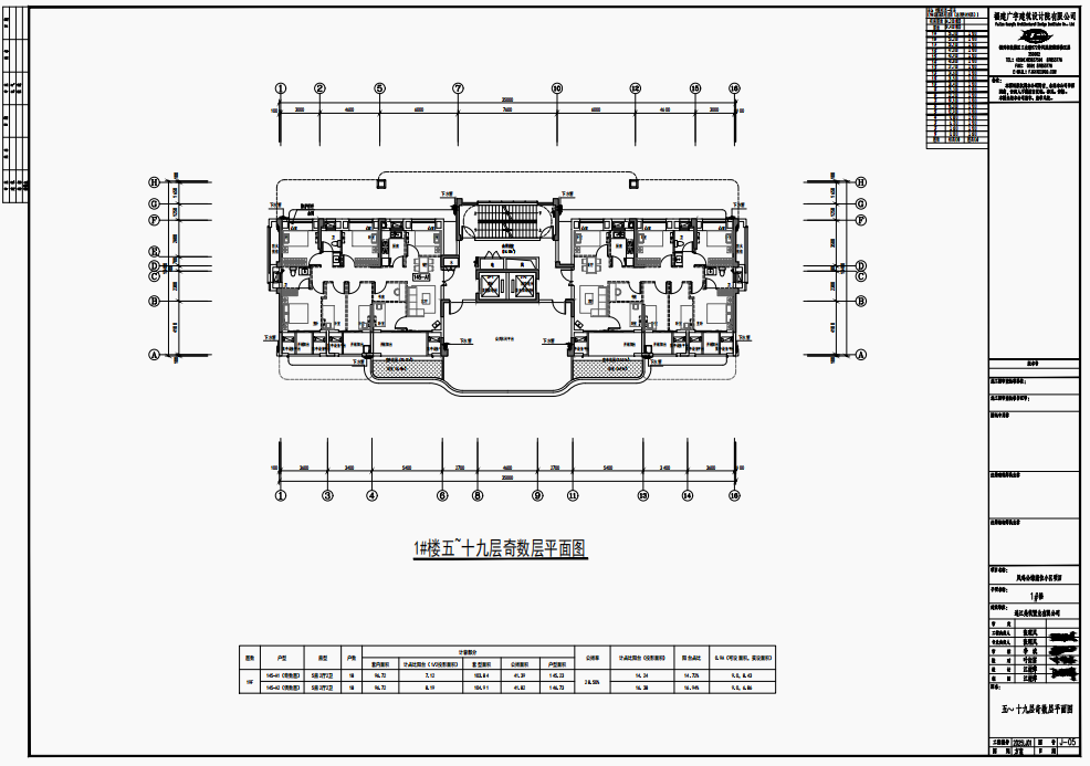
凤鸣公馆商住小区位于连江县青塘南路与马祖路交叉口东北角,建设单位为连江美筑置业有限公司,凤鸣公馆商住小区项目于2025年6月24日核发建设工程规划许可证(证号:建字第3501222025GG0044525号)。现建设单位向我局申请将1#楼、2#楼奇数层合用前室两侧的高窗调整为实墙。
调整后,容积率、建筑密度、绿地率及总建筑面积均保持不变,规划指标均满足土地合同及规划条件要求,具体详附图。


根据《福建省实施(中华人民共和国城乡规划法》办法》规定,现进行批前公示,征求利害关系人意见,公示时间为2026年2月9日至2026年2月24日。
凤鸣公馆占地8.14亩,楼面价3616元/㎡!

2024年5月10日,福建美筑置业有限公司以底价4320万竞得连地拍卖〔2024〕2号,根据容积率上限2.2测算,成交楼面价3616.93元/平米。

出让公告显示,连地拍卖〔2024〕2号位于连江县青塘南路与马祖路交叉口东北角。土地用途为住宅用地-城镇住宅用地(普通商品房)、商服用地(零售商业用地)。

土地面积:5429㎡(合8.14亩) ;出让年限:住宅用地70年、商服用地40年;容积率(FAR)1.8≤建筑容积率≤2.2;建筑密度D≤25%;绿地率GAR≥30%;建筑高度≤60米。
返回海西房产网首页>>