海西房产网(微信公众号:fjhxfcw)消息:2026年1月14日,闽侯县人民政府发布“征收(使用)土地预公告【闽侯县上街镇人工智能生产区(地块三)项目】 ”。

为实施闽侯县国民经济和社会发展规划、国土空间规划,根据《中华人民共和国土地管理法》等法律法规的规定,现发布闽侯县上街镇人工智能生产区(地块三)项目征收(使用)土地预公告:
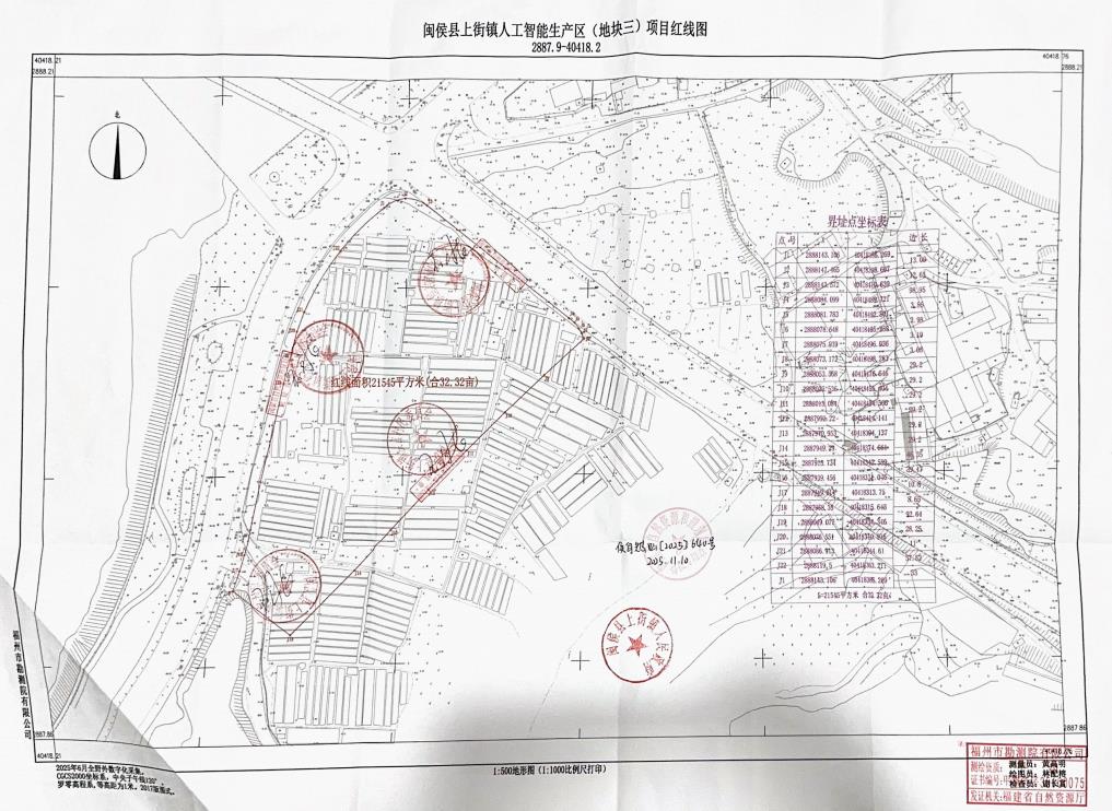
本次征收(使用)面积:2.1545公顷(折合32.3175亩)。.征收(使用)范围:详见红线图。

涉及的村集体经济组织(具体以土地现状调查结果为准):上街镇侯官村。
征地目的:本次征收集体土地用于工业用地,为政府组织实施的成片开发建设需要,符合《中华人民共和国土地管理法》第四十五条规定。
其他事项
拟于2026年1月15日至2026年1月29日由上街镇人民政府组织有关部门进行土地现状调查,有关单位和个人应予以积极配合。
自本公告发布之日起,任何单位和个人不得在拟征地范围内抢栽抢种抢建;违反规定抢栽抢种抢建的,一律不予补偿。
本公告在征收土地涉及的镇、村集体经济组织、村民小组所在地予以张贴,公告时间为十个工作日,村集体经济组织应及时将本公告内容通知被征地的单位和个人。
由上街镇人民政府代表县政府开展补偿登记、组织签订补偿安置协议。

闽侯上街侯官规划建设有“均和云谷·东南科创总部”,打造集高端制造、智能生产、科技研发等为一体的人工智能小镇;集结高新科创企业力量,联动福州科创走廊各片区,以开创科创总部时代为契机。

目前,侯官片区已在建设有均和云谷东南科创总部A区、B区。占地约218.38亩,总建筑面积约14万方,定位为企业总部、研发中试基地。产业方向:新一代信息技术、数字经济、研发智造
返回海西房产网首页>>