海西房产网(微信公众号:fjhxfcw)消息:2025年12月31日,闽侯县政府官网发布“关于闽侯低空总部基地项目总平面规划 调整的公示 ”。

福州市首邑交通建设投资有限责任公司开发建设的闽侯低空总部基地项目位于闽侯县竹岐乡。
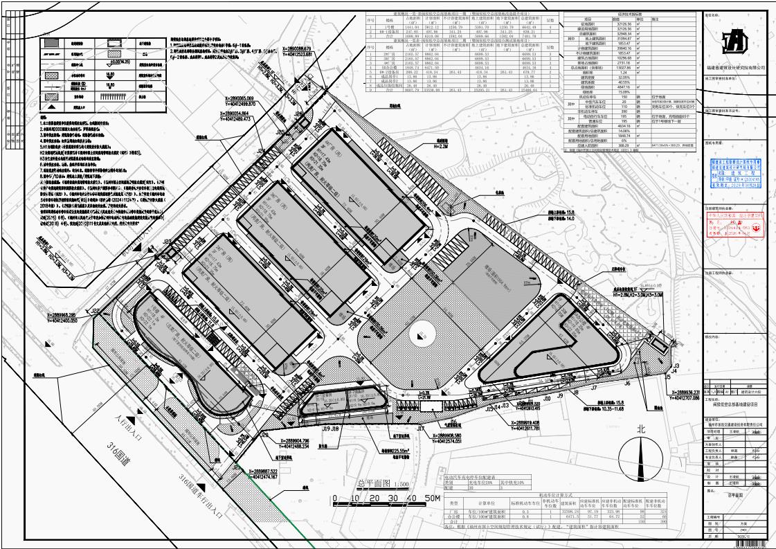
该地块原备案名为“福建省建筑新技术试验转化基地”,原总平面规划方案于2018年经原闽侯县城乡规划局批复,主要经济技术指标为:征地面积47612.72㎡(折合71.419亩),实用地面积47612.72㎡,建筑面积108793.09㎡,计容面积95225.44㎡,占地面积18078.6㎡,容积率2.0,建筑密度38%,绿地率20%,机动车停车位370辆,非机动车停车位2858辆。
福州市首邑交通建设投资有限责任公司于2025年12月4日通过公开出让的方式取得该地块土地使用权,该地块为带建筑物出让(1号楼),建设单位拟对该建筑物加固、改造、利用,并在此基础上根据建设计划对项目总平面规划方案作如下调整:

1.根据《闽侯县人民政府关于闽侯县竹岐片区控制性详细规划修编 350121-JZ JS-193-D 单元D -16、17 地块控规调整论证的批复》调整该项目实用地面积,总平面图中地形底图、各类规划控制线等根据最新地形及控规进行更新;
2.项目名称改为闽侯低空总部基地,取消原规划工程中的2号楼、3号楼、4号楼、5号楼、6号楼、7号楼,调整规划为2#厂房、3#厂房、4#厂房、5#办公楼、6#-1设备房、6#-2设备房、岗亭1、岗亭2、垃圾收集间;
3.根据现状修测成果对1号楼建筑轮廓及总平定位进行调整,同时优化1号楼建筑设计方案;
4.优化项目出入口方案,调整后地块南侧设置一个人行出入口、一个车行出入口,地块西侧设置两个机动车出入口。
调整后总平面规划主要经济技术指标为:征地面积32126.56㎡,实用地面积32126.56㎡,建筑面积32948.34㎡,计容面积39840.16㎡,占地面积10296.68㎡,容积率1.24,建筑密度32.82%,绿地率15.09%,机动车停车位150辆,非机动车停车位390辆。
上述调整内容符合片区控制性详细规划、土地合同、相关规划管理技术规定及有关法律、法规、标准和规范等要求。
依据《福建省实施<中华人民共和国城乡规划法>办法》第五十三条,现将该项目调整前后的总平面图进行公示,以征求相关利害关系人的意见。公示时间为2025年12月31日至2026年1月14日。
2025年7月23日,福州市公共资源交易服务中心发布“闽侯低空总部基地改造提升项目(施工)”。

闽侯低空总部基地改造提升项目(施工)已由 闽侯县人民政府办公室以 《闽侯县人民政府办公室关于闽侯低空总部基地改造提升项目会审的纪要》(侯政办项〔2025〕160号)批准建设, 建设单位为 福州市首邑交通建设投资有限责任公司, 建设资金来源 财政资金, 招标人为福州市首邑交通建设投资有限责任公司, 委托的招标代理单位为 厦门市公物投资管理有限公司。本项目已具备招标条件,现对该项目的施工进行公开招标。
项目位于福州市闽侯县竹岐乡316国道北侧;主要建设内容包括主体施工,一至三层及地下室改造工程。总建筑面积4850平方米,建筑物最大单体跨度8.4米,建筑物最高高度21.8米。
项目总投资约2425.5万元,其中:建安费用约2006.02万元,建设其他费约419.48万元(含双回路外电接入费用)
主要建设内容包括:结构加固、土建、电气、给水排水、暖通等,具体详见图纸及工程量清单(含编制说明)。其中,用于确定企业资质及等级的相关数据:总建筑面积4850平方米,建筑物最大单体跨度8.4米,建筑物最高高度21.8米,用于确定注册建造师等级的相关数据:
招标控制价(即最高投标限价,下同):13877151元;总工期为45 个日历天。
闽侯低空总部基地通过备案报建,总投资2425万元
福建省投资项目在线审批监管平台公布信息显示,“闽侯低空总部基地项目”已于2025年7月21日通过备案报建。

批准结果信息显示为办结(通过),备案号闽发改备[2025]A080346,报建编号为3501212507210101。该项目(法人)单位为福州市首邑交通建设投资有限责任公司,主管部门为闽侯县发展与改革局。

2025年7月23日,福州市公共资源交易服务中心发布“闽侯低空总部基地改造提升项目(施工)”。项目位于福州市闽侯县竹岐乡316国道北侧;主要建设内容包括主体施工,一至三层及地下室改造工程。总建筑面积4850平方米,建筑物最大单体跨度8.4米,建筑物最高高度21.8米。
项目总投资约2425.5万元,其中:建安费用约2006.02万元,建设其他费约419.48万元(含双回路外电接入费用),总工期为45 个日历天。
主要建设内容包括:结构加固、土建、电气、给水排水、暖通等,具体详见图纸及工程量清单(含编制说明)。其中,用于确定企业资质及等级的相关数据:总建筑面积4850平方米,建筑物最大单体跨度8.4米,建筑物最高高度21.8米,用于确定注册建造师等级的相关数据:
闽侯大力发展独具首邑特色的低空经济
闽侯具备发展低空产业的良好基础和有利条件,拥有福州大学城、东南汽车城以及福建省首家通用航空机场等资源,在区位与交通、通航与产业、资金与土地、人口与市场、科研与人才等方面形成了独特的比较优势。这些得天独厚的条件,正助推着闽侯低空经济振翅而飞、蓄势高飞。
当前,按照市委、市政府工作部署,闽侯县正积极探索独具首邑特色的低空经济发展路径。

闽侯县计划竹岐乡打造高端装备智造产业园(低空经济产业园),园区坐落于福州西部闽江南岸,规划总面积1316.9亩,地处福银高速竹岐出口与地铁2号线苏洋站核心辐射区,是集无人机研发制造、航空物流、通航服务于一体的省级重点项目。
返回海西房产网首页>>