
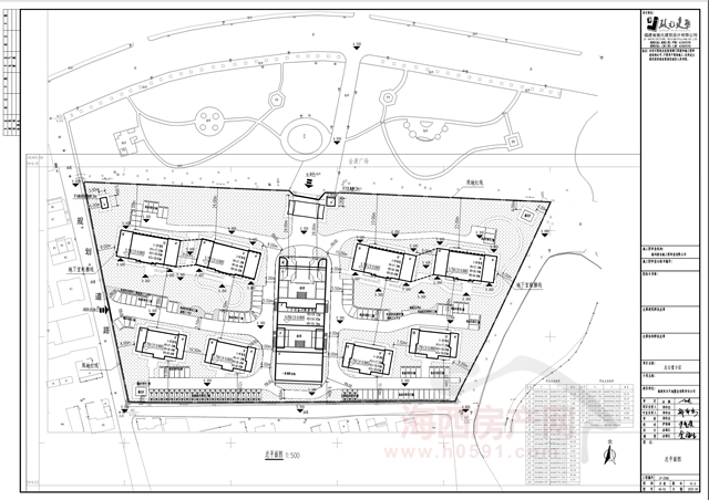
海西房产网(微信公众号:fjhxfcw)消息:近日,连江县自然资源和规划局发布“关于左公堂小区项目的公示”。

公示内容显示,左公堂小区项目位于连江县马鼻镇辰山村,建设单位为福建欢乐天地置业有限公司。现建设单位向我局申请《建设工程规划许可证》。
根据《自然资源部关于加强和规范规划实施监督管理工作的通知》(自然资发〔2023〕237号)规定,现进行批前公示,征求利害关系人意见,公示时间为2025年9月28日至2025年10月13日。
世纪金源底价竞得连江27.69亩宅地!
2024年11月20日,连江县公共资源交易服务中心举行2024年第六场土地拍卖活动。

最终,福建欢乐天地置业有限责任公司以底价3450万元竞得连地拍卖〔2024〕8号,按照容积率1.5测算,得出该地块成交楼面价为1245.73元/㎡。
据了解,福建欢乐天地置业有限责任公司为世纪金源投资集团控股企业。连地拍卖〔2024〕8号对应楼盘即为“左公堂小区”。

出让公告显示,连地拍卖〔2024〕8号地块位于连江县马鼻镇辰山村,土地用途为二类城镇住宅用地-普通商品住房用地。
规划指标要求:
土地面积:18463㎡(合27.69亩);1.0<建筑容积率≤1.5;建筑密度:≤30%;绿地率:≥30%;建筑高度≤24米;出让年限:70年。
出让公告约定,该宗地带建筑物出让,建筑面积4945.15㎡,且该宗地产权办理由竞得人自行负责。
返回海西房产网首页>>